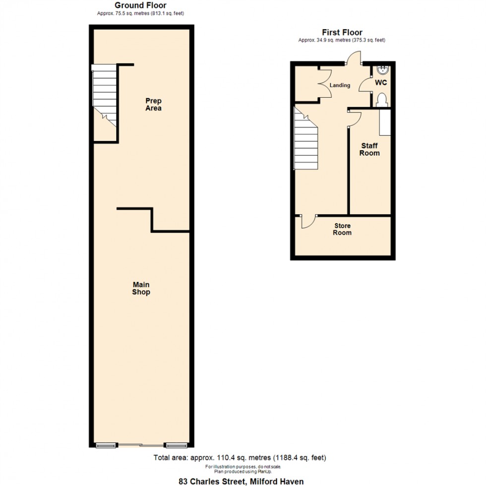
Floorplan for 83 Charles Street, Milford Haven

Property Details


PRIME RETAIL UNIT TO LET

Situated in a prominent position on Charles Street—Milford Haven's principal retail thoroughfare—this well presented commercial property offers an excellent opportunity for retailers seeking a high-visibility location in one of Pembrokeshire's main town centres.

The property's layout is conducive to various retail formats, with ample sales and ancillary areas spread across two levels and totalling approximately 110.4 sq. m. (1,188.4 dq. ft.).

Main Shop (10.20m max. x 4.20)

Double electric sliding doors with locking roller shutter, display windows to either side

Prep Area (8.70m max. x 4.20m)

With electric outlets and plumbing for appliances

Landing

Storage cupboard over stairs

Staff Room (4.60m x 1.80m)

Store Room (4.20m x 1.70m)

WC

Close coupled lavatory, hand basin

General Notes

Services: Mains electricity, water and drainage are connected
Local Authority: Pembrokeshire County Council

Rental

£8,400 per annum (exclusive of rates)

Term

Term of years to be agreed

Insurance

The Landlord will effect insurance against fire and the usual perils, and recover a proportion (4/28) of the annual premium from the tenant

Repairs/Decoration

Tenant's responsibility upon full repairing basis

Planning Permission

All enquiries to the Planning Department of Pembrokeshire County Council (01437 764551)

Business Rates

Current rateable value (1 April 2023 to present) £4,250

Service Charge

The service charge is 4/28 of expenditure, invoiced annually for the previous year

Commercial Energy Performance Certificate

CEPC: B - 43

Legal Costs

Each party to bare their own costs

Fittings, fixtures and appliances

None of these have been tested by the Agent

Viewing

Strictly by appointment with R K Lucas & Son

SUBJECT TO CONTRACT AND AVAILABILITY