Floorplan for The Ferry Boat Guest House, Goodwick

Property Details


Discover a rare opportunity to own a well-presented 6-bedroom guest house in the heart of Goodwick, a charming coastal village on the edge of the Pembrokeshire National Park. Ideally located just minutes from the beach, ferry terminal, and scenic coastal paths, this property offers both a hospitality venture and the potential to revert to a spacious residential home if desired.

The guest house features comfortable en-suite bedrooms, inviting communal areas, and a warm, welcoming atmosphere that keeps guests coming back. Its flexible layout means it can continue operating as a thriving guest house or easily be converted back into a stylish family residence.

With trade potential, excellent local amenities, and a prime coastal location, this property represents a unique investment or lifestyle opportunity in West Wales.

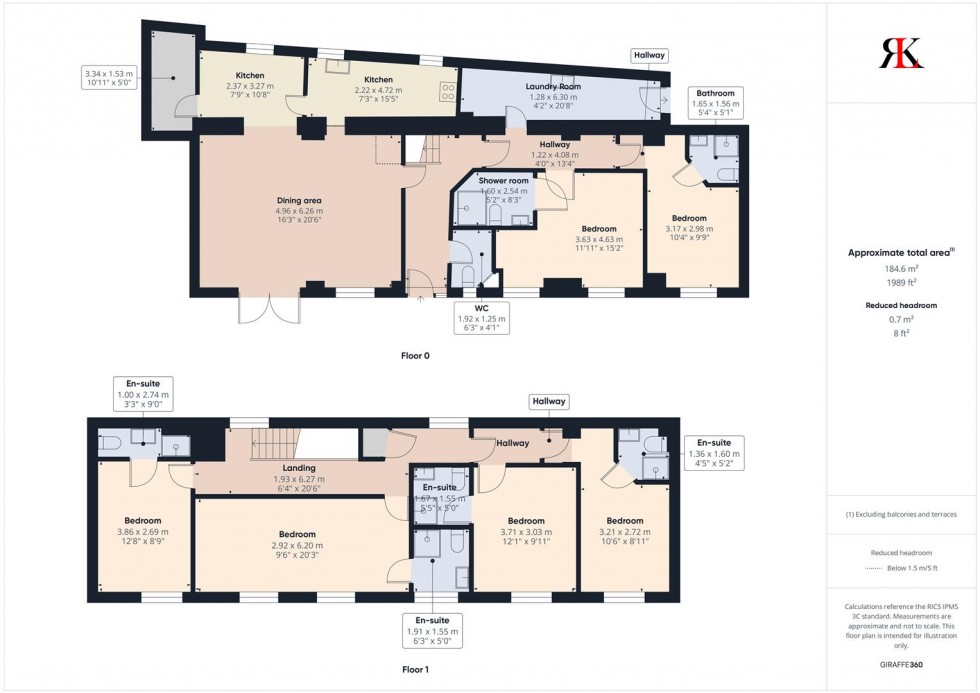
Hallway

Timber flooring, door to the front

WC

WC, hand basin, frosted double glazed uPVC window to the front

Dining area

Fitted carpet, kitchen area with base units, Double glazed uPVC window to the front, uPVC double doors to the front, double glazed uPVC window to the rear

Kitchen

Stainless steel preparation areas, professional hob and oven, windows to the rear

Bedroom 1

Fitted carpet, 2 x double glazed uPVC windows to the front

En-suite

Fully tiled shower room, WC, hand basin

Bedroom 2

Fitted carpet, double glazed uPVC window to the front

En-suite

Fully tiled shower room, WC, hand basin

Laundry Room

Tiled flooring, tiled splash back, base units, uPVC door with glass panel insert

Bedroom 3

Fitted carpet, double glazed uPVC window to the front

En-suite

Fully tiled shower room, WC, hand basin

Bedroom 4

Fitted carpet, 2 x double glazed uPVC windows to the front

En-suite

Fully tiled shower room, WC, hand basin

Bedroom 5

Fitted carpet, double glazed uPVC window to the front

En-suite

Fully tiled shower room, WC, hand basin

Bedroom 6

Fitted carpet, double glazed uPVC window to the front

En-suite

Fully tiled shower room, WC, hand basin

Outside

To the front, there is private parking for multiple vehicles, ideal for residents and Airbnb guests alike

Additional information

Tenure: Freehold
Services: We are advised all mains are connected
Local Authority: Pembrokeshire County Council


Mobile Phone Reception: Likely/Limited depending on provider
Broadband: Ultrafast available
Buyers should make their own enquiries.